-
26年
專注標識設計定制
-
31年
國內外標識行業榮譽資質
-
150人
總監級設計 / 施工項目團隊
-
3000家
上市企業標識系統成功項目
-
5600平
大型制造生產基地

定制需求 Custom requirements
概念設計 Conceptual design
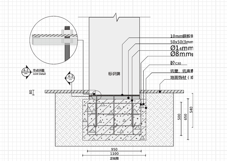
深化設計 Deepened design








